Подготовка к установке турника во дворе. Общая информация о турнике
- Подготовка к установке турника во дворе. Общая информация о турнике
- Размеры турника на улице. Основные размеры бруса для спортивного турника
- Уличный турник своими руками. Подготовка к установке турника во дворе
- Турник во дворе частного дома. Уличный турник своими руками
- Как сделать турник 3в1 своими руками. Как изготовить?
- Размеры турника и брусьев на улице. Оптимальные размеры турника мы выяснили, а теперь дадим рекомендации по его установке:
- Как сделать турник дома. Домашний турник своими руками: чертежи, схемы, фото
Подготовка к установке турника во дворе. Общая информация о турнике
Турник — спортивное сооружение, состоящее из горизонтальной перекладины, прикреплённой к вертикальным стойкам. Перекладина, на которой можно висеть и выполнять различные упражнения, обычно располагается выше роста человека, в противном случае полноценно тренироваться на этом снаряде не получится. Турник можно устанавливать в квартире, на улице. Этот тренажёр — обязательный элемент спортивных комплексов.
Несмотря на элементарную конструкцию, на турнике можно выполнять много полезных упражнений.

Два турника соединены шведской стенкой, что позволяет разнообразить выполняемые упражнения
Виды турников
Турник может иметь как одну, так и несколько перекладин, прикреплённых к стойкам на одинаковой или на разной высоте, что делает его настоящей находкой для простейших тренировок всей семьи. Взрослым и детям будет удобно физически развиваться и совершенствоваться на турнике, построенном с учётом их роста.

Разноуровневый турник позволяет тренироваться всем членам семьи
Многоуровневая конструкция — это не единственная разновидность турника. Спортивное сооружение может оснащаться дополнительно брусьями, гимнастическими кольцами, лестницами, канатом. В этом случае речь идёт о турнике как о составляющей части целого физкультурного комплекса.
Турники можно ставить в квартирах. Для этого не требуется много свободного пространства. Перекладина может быть установлена в дверной проём или на стене. Такой простейший тренажёр поможет взрослым сохранять физическую форму, подкачивать мышцы рук, груди, спины и пресса, а детям — познавать азы спортивного преодоления, учиться здоровому образу жизни.
Уличный турник не занимает много места. Главное, чтобы это спортивное устройство было правильно и безопасно установлено.

Турник-брусья многофункционален и интересен для мужчин и женщин любого возраста
Отдельно нужно сказать о популярной модели — турник-брусья. Такое сооружение с ручками способно сочетать в себе сразу несколько спортивных снарядов:
- традиционный турник;
- брусья;
- снаряд для тренировки пресса;
- шведскую стенку.
Турник можно купить в специализированных магазинах, а можно соорудить своими руками, значительно сэкономив при этом финансы.
Польза снаряда
Турник сможет стать настоящим помощником для укрепления мышц, причём это касается лиц как мужского, так и женского пола. Поставив такой простой тренажёр на территории загородного участка или во дворе многоквартирного дома, вы тоже сможете реально ощутить пользу, которую приносит это сооружение.
Вот какие задачи поможет решить турник, установленный на улице:
- Расслабление и вытягивание позвоночного столба. Обычное висение на перекладине в спокойном состоянии поможет избавиться от перенапряжения мышц спины, растянуть позвонки после длительного сидения за рабочим столом или домашним компьютером.
- Корректировка осанки. Особенно это актуально для детей и подростков, не слишком дружащих с физкультурой и увлечённых компьютером. Упражнения на турнике помогут укрепить мышцы, поддерживающие позвоночник, и за счёт этого улучшить внешний вид.
- Приобщение к здоровому образу жизни. В любом возрасте полезно выполнять несложный комплекс физических упражнений, благодаря чему можно стать сильным и красивым. А также дети, увлечённые занятиями на турнике, будут «изъяты» из неблагополучных компаний, отучены от праздных шатаний и безделья.
- Длительное нахождение на свежем воздухе. Приучив себя к тренировкам на турнике, вы будете в любую погоду выходить из дома и, делая спортивные упражнения, дышать полезным озоном (особенно это касается загородных участков).
Возможно использование турника не по назначению. Его нередко применяют как крепкую перекладину для выбивания ковров, сушки одеял и подушек. Оригинально и креативно будет выглядеть праздничная растяжка или воздушные шарики, укреплённые на турнике в честь дня рождения ваших домочадцев.

Размеры турника на улице. Основные размеры бруса для спортивного турника
Стандартные размеры большинства моделей уже довольно давно рассчитаны в соответствии с физическими показателями человека. Тем не менее, многие производители иногда отступают от привычных габаритов, внося свои коррективы и параметры оборудования. Еще один способ заняться спортом – поставить.
На фото – конструкция турника и брусьев для дачи:
Если кратко сформулировать наиболее распространенные размеры турников или брусьев, получиться следующая картина.
Параметры: ширина, высота, диаметр
Основные параметры гимнастических тренажеров:
| Показатель | Параметры |
| Ширина перекладины | 1100 мм |
| Ширина брусьев | 550 мм |
| Диаметр ручек без мягких накладок | 27 мм |
| Диаметр ручек с учетом накладок | 35 мм |
| Нагрузка на конструкцию | до 250 кг |
| Вес оборудования | до 10 кг |
| Желательный тип окраски | порошковая |
Большинство турников и брусьев имеют стандартный способ установки: вкапываются в землю. Более современным является вариант, когда турник крепится к стене или любой другой вертикальной поверхности. Помимо других преимуществ, такой вариант будет отличаться мобильностью и относительно малым весом, что позволит беспроблемно его транспортировать, например, на машине.
Оригинальной моделью будет и турник, крепящийся к потолку, но речь уже идет о домашних тренажерах, хотя его с успехом можно устанавливать и на улице, например, на летней веранде или под навесом.
Зонты для дачи в Леруа Мерлен представлены в разных расцветках.
Здесь можно посмотреть фото детских бассейнов с крышей можно.
Уличный турник своими руками. Подготовка к установке турника во дворе
Установка уличного турника — серьёзная затея, к которой стоит подойти основательно. Для начала необходимо иметь чёткое представление о задачах, возлагаемых на будущее сооружение, о размерах и месте его установки.
Выбор места
Перед тем как сделать турник на улице своими руками, нужно подобрать подходящее место для установки снаряда. Делать это нужно исходя из выбранной конструкции (обычный турник, турник + брусья, спортивный комплекс).
Конечно, не стоит выносить спортивное устройство «к парадному подъезду», лучше, если турник будет установлен вдали от посторонних глаз . Этот вариант особо актуален для тех, кто находится не в лучшей спортивной форме. Выполняя упражнения на турнике вдали от посторонних глаз, вы не будете комплексовать по поводу своего внешнего вида и неумелых движений.
Спортивный комплекс с турником лучше расположить вдали от посторонних глаз
Если есть такая возможность, то спортивную конструкцию нужно расположить подальше от прямых солнечных лучей, лучше в тени больших раскидистых деревьев. Тогда вы сможете уберечь себя от солнечного или теплового удара при занятиях в жаркое время года.
Ни в коем случае не выбирайте для установки турника неровную поверхность, поскольку и само строительство, и последующие занятия будут усложнены таким неблагоприятным ландшафтом. Оптимальным для безопасных и эффективных тренировок считается монтаж турника на газонной поверхности или специальном резиновом покрытии.
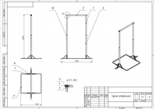
Чертёж строительства уличного турника на даче: размеры
Чтобы построить турник на даче своими руками, определить и приготовить нужное количество материалов, необходимо заранее определиться с размерами. Параметры могут отличаться в зависимости от того, для взрослых или детей он предназначен. Согласитесь, что ребёнок, взобравшийся на высокий турник, будет очень сильно рисковать своим здоровьем, он может сорваться и получить травму. И простое действие — ухватиться руками за перекладину — станет для него настоящей проблемой. Без помощи взрослого, друга или дополнительных приспособлений не обойтись. Поэтому высота вертикальных стоек должна быть такой, чтобы человек любого возраста смог спокойно дотянуться до перекладины.
Высота вертикальных стоек детского турника должна быть такой, чтобымалыши могли дотянуться до перекладиныбез помощи взрослых
Для взбирания на снаряд можно сделать специальную подножку, её, как правило, располагают на вертикальной опоре на высоте 40 см от основания.
Взрослые могут сделать турник повыше, тогда придётся подпрыгнуть, чтобы удержаться на перекладине. Для человека ростом 170–180 см подойдёт снаряд высотой 2 м.
Ширина горизонтальной планки также должна варьироваться в зависимости от возраста:
- для детей — до 1 м;
- для взрослых — 1,3–1,5 м.
Такие размеры позволяют выполнять упражнения на турнике без ограничений. Занимающийся не будет наталкиваться на вертикальные опоры.
Диаметр перекладины для детских рук — 25 мм, в подростковом и более старшем возрасте подойдёт турник с горизонтальной трубой в 35 мм.
Нагрузка, которую должен выдерживать этот спортивный снаряд, может доходить до 300 кг.
Чтобы построить уличный турник своими руками, чертежи просто необходимы.
Турник во дворе частного дома. Уличный турник своими руками
На чтение 5 мин
Чтобы установить турник своими руками, необходимо подготовить чертеж, содержащий рисунок и размеры отдельных элементов конструкции. Наличие турника обеспечивает постоянный доступ к занятиям спортом на своем дачном участке. Такие конструкции отличаются по габаритам. При выборе подходящего сооружения стоит ориентироваться на размеры приусадебной территории и личные потребности.
Для чего нужен турник на даче?
Стандартный турник является спортивным снарядом, который может иметь различное количество перекладин. Он может дополнятся вспомогательными конструкциями, такими как: лестница, брусья и т.п. Конструкция, включающая в себя, несколько перекладин является цельной. Это означает, что все они объединены между собой стойками. Перекладины принято располагать на разных уровнях.
Обратите внимание! При выборе высоты стоек рекомендуется ориентироваться на рост членов семьи. Многоуровневый турник – лучшее решение для семьи, в которой есть дети. В таком случае самая низкая перекладина будет предназначаться для ребенка.

Лестница, являющаяся дополнительным элементом конструкции, может располагаться как в вертикальной, так и в горизонтальной плоскости. При желании можно сделать не только брусья, но и установить другие дополнения для занятий спортом. Например, если в семье есть дети, то тогда турник можно дополнить канатом, баскетбольным кольцом или небольшой боксерской грушей.

Уличный спортивный комплекс
Наличие турника во дворе имеет множество преимуществ. Основным из них является доступность сооружения, которое располагается в непосредственной близости от частного дома или дачи. Наличие турника способствует поддержанию хорошей физической формы. Упражнения на турнике помогают снять усталость и напряжение, улучшить общее физическое состояние и здоровье. Для ребенка наличие этого спортивного снаряда также является плюсом. Занятие на турнике позволяют подкорректировать осанку и укрепить кости позвоночника.

Подготовка к установке турника
Подготовительный этап включает в себя несколько мероприятий. Для начала стоит определиться с местом установки турника. Чтобы правильно подобрать место, необходимо взять во внимание следующие факторы:
- площадь участка;
- расположение хозяйственных сооружений;
- габариты спортивной конструкции.
Важно! Конструкция должна быть установлена на ровную поверхность. Турник, используемый для занятий спортом, принято располагать вдали от стен, ограждений и столбов. Это необходимо для того, чтобы обеспечить свободу во время занятий спортом.
Специалисты рекомендуют повысить безопасность во время тренировок. Особенно, это важно в том случае, если турник будут использовать дети. Для безопасности потребуется выполнить под турником подложку из песка или же разместить специальную подложку из эластичного материала.

Турник лучше всего установить на даче в тени деревьев. В летний период это решение обезопасит людей от палящего солнца. На этапе подготовки необходимо также составить чертеж. Не обязательно делать это самостоятельно, так как в интернете достаточно схем, на которых изображены самые разнообразные конструкции на любой вкус. Также стоит подготовить необходимые материалы и инструменты.

Инструменты и материалы
Первый вопрос, который возникает при выборе материалов – что лучше дерево или металл? Опытные матера рекомендуют использовать металлические детали, так как они отличаются более высокой прочностью и устойчивы к износу. Минусом металлического спортивного сооружения является высокая стоимость. Рассмотрим, какие материалы необходимо приобрести перед тем, как приступить к установке стандартного турника:

Чертеж турника
- труба 2,7 м на 25 мм;
- труба 10 м на 120 мм;
- уголок 20 на 20 на 4000 мм;
- электроды (для сварочного агрегата);
- краска.
Для укрепления вертикальных стоек турника потребуется выполнить бетонный раствор. Он изготавливается из следующих составляющих: щебень, песок, цемент. Для такой работы подойдет цемент марки M200. Также стоит заранее приобрести битумную мастику.

Важно! Расчет пропорций бетонного раствора проще всего реализовать, воспользовавшись специальным онлайн-калькулятором.

Как сделать турник 3в1 своими руками. Как изготовить?
Процесс изготовления турника своими руками состоит из нескольких шагов. Подготовить трубы. К той части, что будет находиться в грунте, рекомендуется приварить уголки длиной 20 см, то есть сделать своеобразную «елочку». Направления элементов должны быть в разные стороны – они будут предохранять вертикальные направляющие от деформаций. Если перпендикулярные направляющие будут состоять из бруса, то следует прикрепить небольшие бруски длиной 25 см. Располагать точки фиксации на брусках в точке (+/- 5 см) их центра, таким образом, также будет присутствовать «елочка», только не из металла, а из дерева.
После того как все подготовительные работы удалось сделать, трубы «елочкой» вниз инсталлируются в ямы, выравниваются строго перпендикулярно с помощью двухметрового уровня, закрепляются.
После завершения этой операции готовится бетон, что заливается в ямку. В бетоне обязательно должен присутствовать гравий – так крепежный узел будет более прочным и надежным. Обязательно следует соблюдать такие условия: не подвергать никакой нагрузке спортивный снаряд, пока не «схватится» бетон (на это может потребоваться 2-3 месяца). Как видим, собрать правильно и поставить самые главные элементы турника – вертикальные направляющие – несложно, нужно только следовать всем технологическим предписаниям. При креплении деревянных вертикальных направляющих из бруса все делается по аналогии с металлическими конструкциями. Стальная или деревянная перекладина закрепляется с помощью хомутовых фиксаторов или болтов. Второй тип крепления более надежен. Ставятся также хомутовые фиксаторы, которые являются страховкой от непредвиденных сильных перегрузок.
Для детского турника требуется перекладина поменьше, высота вертикальных направляющих может быть не более 1,7 метра. К детскому спортивному снаряду добавляется небольшая лесенка. После завершения монтажа изделие следует покрыть грунтовкой и покрасить. Иногда перекладину обматывают веревкой или жгутом – эти материалы эффективно предохраняют от скольжения. Возможно также поставить и специальные прокладки, которые несложно приобрести в спортивном магазине. Лучшей профилактики от появления сколиоза трудно представить. Правильно сделанный турник – это большая польза для здоровья.
Размеры турника и брусьев на улице. Оптимальные размеры турника мы выяснили, а теперь дадим рекомендации по его установке:
- Перекладина должна быть расположена на таком уровне, чтобы вы могли дотянуться до нее не из прыжка, а встав на цыпочки
- Также во время установки необходимо учитывать расстояние до потолка. Подтягиваться на турнике без опасения удариться головой можно только при расстоянии не меньше 35 см.
Понятно, что габариты современных квартир существенно отличаются от королевских покоев – и имеют расстояние от пола до потолка порядка 2, 5 метров. Поэтому выполнение некоторых упражнений на домашнем турнике физически не будет представляться возможным.
Например, у вас не получится перейти в положение в упор, при котором плечи спортсмена должны находиться существенно выше точек опоры.
Однако для этой цели можно озадачиться изготовлением уличного турника или брусьев.
Металлический стержень, изготовленный из толстостенной стали, должен располагаться на высоте около 2 метров от земли. Длина перекладины ориентировочно должна составлять 1, 2 метра. Впрочем, вы можете определить и другие параметры, ориентируясь на собственные понятия о комфортном выполнении упражнений.
Опоры для снаряда могут представлять собой деревянные брусья или металлические трубы. Крепление турника с металлическими стойками необходимо осуществлять посредством сварки. При этом диаметр стоек должен быть в два раза больше диаметра самой перекладины.
Оптимальное расстояние между стойками – от 1 до 1,5 метров. Это же расстояние необходимо соблюдать, вбивая в землю деревянные брусья.
Как сделать турник дома. Домашний турник своими руками: чертежи, схемы, фото
Для поддержания физической формы, не у всех есть возможность посещать спортзал, но упражнения можно делать и в домашних условиях. Для укрепления мускулатуры рук, спины и пресса можно сделать турник для дома. Конструкции есть разные — самые простые и посложнее.
Виды турников
Для поддержания спортивной формы желательно иметь дома спортивные снаряды. К самым простой из них относится турник. Это одна или несколько перекладин небольшого размера, которые позволяют тренировать мышцы рук, груди, пресса и спины. Надо только найти подходящий комплекс упражнений.

Один из простых вариантов
Для дома (квартиры)
В доме обычно найти место для турника проще. В квартире обычно это сделать посложнее, поэтому многие ищут варианты, которые занимают немного места, легко снимаются и устанавливаются: чтобы можно было хранить, скажем, в шкафу и вешать только на время занятий. Для использования в помещениях есть такие модели:
- Настенные . Есть разных размеров и конструкций — от простой перекладины на уголках, до более сложных конструкций под разные хваты и разные группы мышц. Имеют общий тип крепления: мощные уголки, которые крепятся непосредственно к стене.
- Угловые . Одна из разновидностей настенных. Разница понятна из названия — крепятся к двум смежным стенам, образующим угол.
- В дверном проеме . Требует минимум времени для изготовления, да еще и может быть съемным. Есть в двух вариантах:
- Устанавливается в дверном проеме. Это обычно просто одна перекладина. Более сложную конструкцию тут все равно не укрепишь.
- Крепится над дверью. Чуть более сложная конструкция, позволяющая разнообразить занятия.













